Owned Property

自社物件一覧

フォレストオーダー梶町3丁目

9439A8FC-510B-4E6C-880C-E416D4C92195 IMG_9990 IMG_9989 IMG_9983 IMG_9981 IMG_9979

物件概要

所在地守口市梶町3丁目
交通京阪本線【古川橋】駅徒歩14分
物件種別新築一戸建
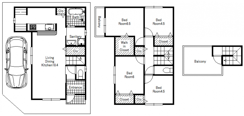
間取り4LDK+ルーフバルコニー
建物面積102㎡
土地面積83.31㎡

間取り図・地図

物件詳細情報

所在地守口市梶町3丁目
交通京阪本線【古川橋】駅徒歩14分
物件種別新築一戸建
間取り4LDK+ルーフバルコニー
建物面積102㎡
土地面積83.31㎡
構造木造
建ぺい率70%
容積率200%
築年月日未完成
接道南側幅員約4m 西側幅員約4m
総戸数1戸
現況建築中
地目宅地
土地権利所有権
都市計画市街化区域
用途地域1種住居
引渡し即時
管理形態売主