Owned Property

自社物件一覧

成約御礼!

IMG_0061 IMG_1043 IMG_1040 IMG_1044

物件概要

所在地大東市泉町1丁目
物件種別新築一戸建
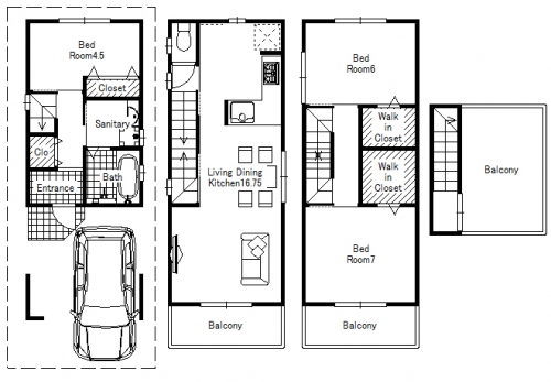
間取り3LDKルーフバルコニー付き
建物面積100.69㎡
土地面積55.94㎡

間取り図・地図

物件詳細情報

所在地大東市泉町1丁目
物件種別新築一戸建
間取り3LDKルーフバルコニー付き
建物面積100.69㎡
土地面積55.94㎡
構造木造3階建
建ぺい率60%
容積率200%
築年月日未完成
接道東側 約6.8m
総戸数
現況更地
地目宅地
土地権利所有権
都市計画市街化
用途地域第二種中高層住居専用地域
引渡し相談
管理形態売主